Download the Onshape Mobile App

IOS Android
Blog Hero Image
READ TIME:
2:10

A typical requirement when working with configurations is to draw each configuration in a separate drawing. Usually, this is done by copying a drawing and modifying accordingly. Creating and maintaining these individual drawings can be tedious, especially since the drawing is "the same but different."

Using the duplicate functionality inside a drawing makes it easier to create and manage these drawings.

First, create a configured drawing exactly how you would like it to appear. This includes any drawing views, annotations, notes, etc. Ideally, the drawing should reflect the "middle of the road" when annotating. This plays a role with future drawings and can save you time when adding or deleting annotations.

To create additional copies of this drawing, expand the sheets pane on the left-hand side of the graphics area. Once expanded, right-click on the sheet you wish to copy and select "Duplicate."

duplicate

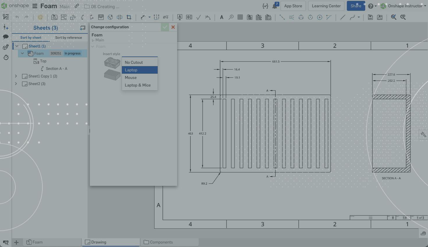
A second identical drawing sheet is created and activated automatically. Changing the sheet reference to a different configuration is as simple as right-clicking on the model in the sheets pane and selecting "Change Configuration."

change configurations

Select the new configuration and accept the dialog.

laptop

The drawing automatically updates to reference this new configuration.

As this is a different configuration and more than likely has some design changes, add or remove drawing annotations as required.

Repeat the same process for any additional configuration drawings required.

As you create additional sheets, be sure to rename them. Right-click on the sheet and select "Rename." Enter a name and accept the dialog. This makes figuring out which sheet references each configuration easier down the line.

A Bill of Material may not always reference the correct configuration when making configured assembly drawings. To change the BOM reference, right-click on the Bill of Materials and select "Change Configuration."

change configurations

Select new parameters in the dialog box and click "Generate." Accept the dialog to update the Bill of Materials to the new configuration.

As you can see, duplicating an existing drawing and modifying the reference to a different configuration is as simple as a few mouse clicks. This allows you to keep the data in one source of truth, making management of this data easier than traditional methods in old CAD.

Learn more by watching the video below:

This Tech Tip helped you learn how to quickly prepare a drawing and change references when using configurations. We have more resources for you to learn more about related features, like Configurations and Sharing Documents inside the Onshape Learning Center.

Interested in learning more Onshape Tech Tips? You can review the most recent technical blogs here.

Latest Content